102 West Division Street - 212, Syracuse, NY 13204
102 West Division Street - 212, Syracuse, NY 13204
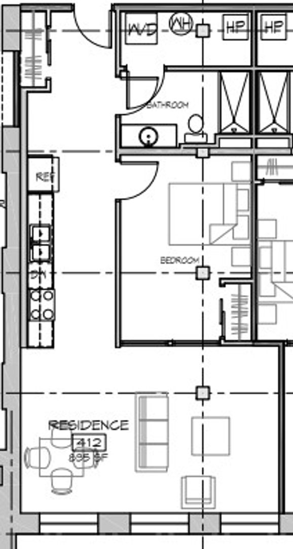
Franklin Square One Bedroom For August Move In
Welcome to the Beautiful 1 Bedroom in the Oak Knitting Mill, a gem nestled in the heart of Syracuse, NY. This apartment boasts a spacious bedroom and a full bathroom, perfect for those who value comfort and convenience. The building is secured, providing peace of mind, and offers off-street parking, a valuable amenity in the bustling city. Fitness enthusiasts will appreciate the on-site fitness center, eliminating the need for a gym membership. The apartment comes with a washer/dryer, central air, and stainless-steel appliances, ensuring a modern and convenient living experience. Pet lovers will be thrilled to know that this is a pet-friendly environment. The location is a dream come true, with easy access to 81 and shopping centers in close proximity. The apartment's large windows allow for plenty of natural light, and the private patio is perfect for enjoying a cup of coffee in the morning or unwinding in the evening. The high ceilings add to the spacious feel of the apartment, creating an open and airy atmosphere. Experience the perfect blend of comfort, convenience, and style at the Beautiful 1 Bedroom in the Oak Knitting Mill.
Text Us:





















